Search

Leave a Message

Thank you for your message. We will be in touch with you shortly.

Explore Our Properties

Property Description

Big on space, light on maintenance, and priced with instant value--this is your chance to snag the best deal in Englewood.
The South units sold for $1,099,000 earlier this year, and this North half of the duplex comes with a $30K seller credit for buy-downs--bringing your effective price to just $1,040,000. That's built-in savings on a home that already lives like a single-family in one of the south metro's most walkable and fastest-growing neighborhoods.
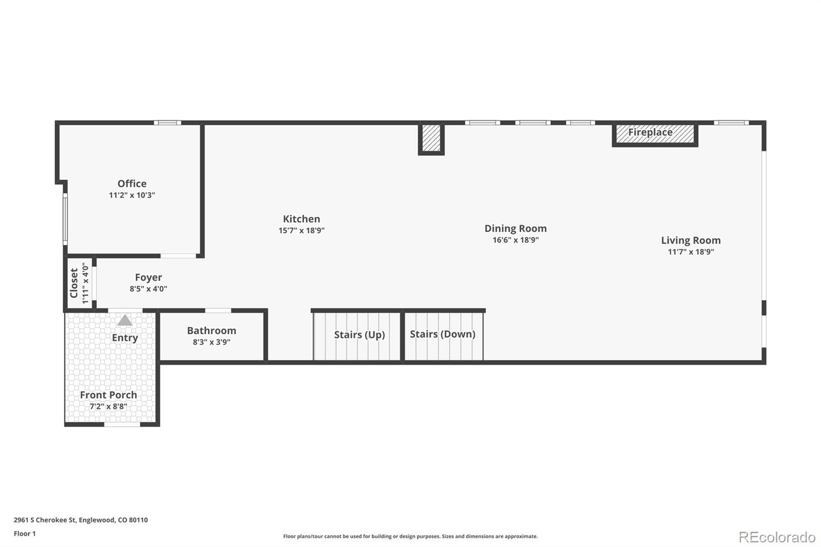
Inside, the open-concept design offers generous square footage, perfect for young families, remote workers, or anyone needing room to grow. The kitchen flows seamlessly into a light-filled living area with floor-to-ceiling windows, while the flexible layout easily adapts to offices, playrooms, or guest space.
Upstairs, you'll find secondary bedrooms, a full bath, laundry, and a luxurious Primary Suite with its own sitting area, walk-in closet, spa-like 5-piece bath, and more of those signature floor-to-ceiling windows.
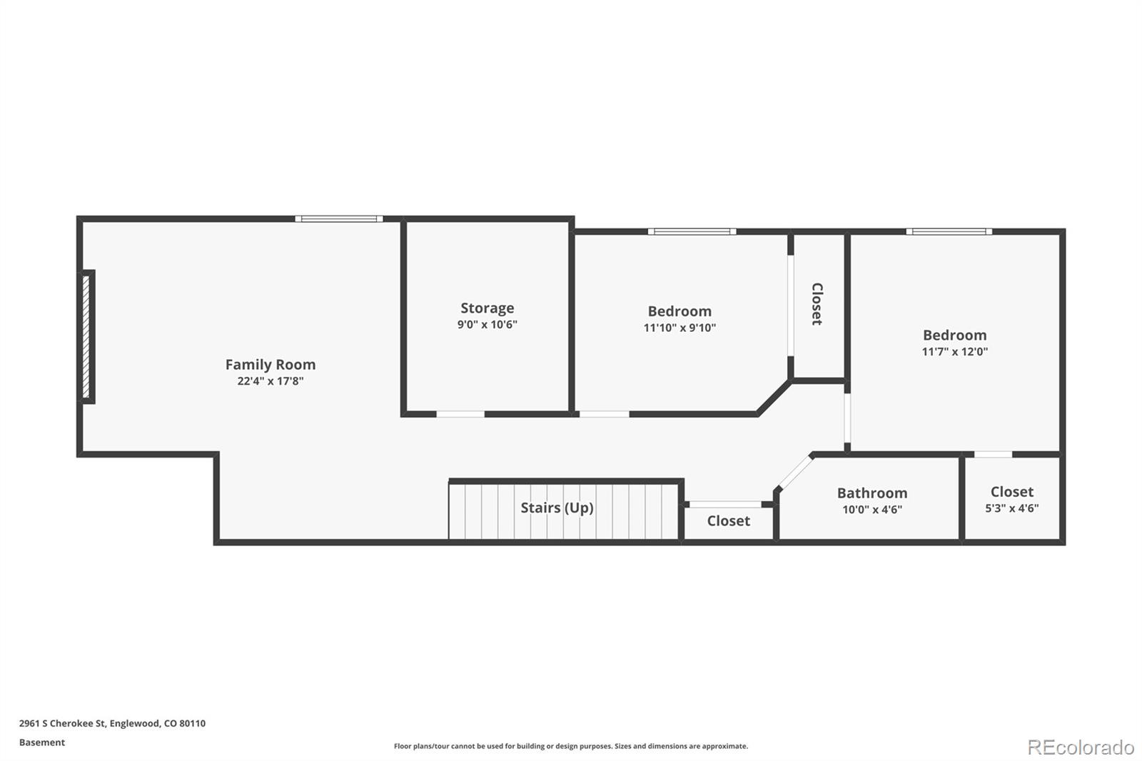
The large basement adds incredible versatility with two bedrooms, a full bathroom, and a huge bonus room complete with wet bar--ideal for movie nights, hosting, or multigenerational living.
Out front, enjoy welcoming curb appeal and a private yard. Out back, a low-maintenance patio makes mornings and evenings easy. A detached two-car garage gives you the storage and convenience many new builds lack--all with no HOA headaches.
Just blocks from parks, breweries, restaurants, and light rail, this home delivers the lifestyle everyone wants, at a price that makes sense.
MAKE US AN OFFER--this one won't last.

Overview

Property Status
Sold
Lot Size
6,098.4 Sq.Ft.
MLS ID
3220183
Property Type
Residential
Year Built
2024

Features & Amenities

Total Area
3,215 Sq.Ft.
Neighborhood
Englewood
Architecture Styles
Urban Contemporary
Stories
2
Garage Spaces
2.0
Roof
Composition
Lot Features
Level
Parking
220 Volts
Heat Type
Forced Air
Air Conditioning
Central Air
Fireplace
Living Room
Appliances
Dishwasher, Disposal, Microwave, Oven, Range, Range Hood, Refrigerator
Other Interior Features
Built-in Features, Five Piece Bath, High Ceilings, Kitchen Island, Open Floorplan, Primary Suite, Quartz Counters, Vaulted Ceiling(s), Walk-In Closet(s), Wet Bar
Sewer
Public Sewer
Other Exterior Features
Private Yard
Elementary School
Bishop
Middle School
Englewood
High School
Englewood
School District
Englewood 1
Sales Price
$1,030,000
Real Estate Tax
$1,938/yr

Downloads

2961 S Cherokee

Schedule a Tour

We would love to help you see this beautiful home! As a full-service brokerage, we can help you tour. Please submit an offer, and answer questions about the buying process.

Thank you

for your interest in 2961 S Cherokee, Englewood, CO 80110

2961 S Cherokee
Navigate
Englewood

Explore Englewood

read more
2961 S Cherokee
explore in 3d

I'm Interested In

2961 S Cherokee

or
  • CallTyler Bulmer

    License #100079719

    (720) 561-0759
  • Browse Our

    Featured Listings

    • 3057 S Rosemary Street For Sale

      $799,900

      3057 S Rosemary Street, Denver, CO 80231

      • 4 Beds
      • 4 Baths
      • 2,651 Sq.Ft.
    • 2901 Wyandot Street Unit: 2 For Sale

      $569,900

      2901 Wyandot Street Unit: 2, Denver, CO 80211

      • 2 Beds
      • 2 Baths
      • 1,126 Sq.Ft.
    • 340 N Harlan Street For Sale

      $499,900

      340 N Harlan Street, Lakewood, CO 80226

      • 4 Beds
      • 3 Baths
      • 1,400 Sq.Ft.
    • 2014 S Gold Bug Way For Sale

      $399,900

      2014 S Gold Bug Way, Aurora, CO 80018

      • 2 Beds
      • 3 Baths
      • 1,489 Sq.Ft.
    View All

    Follow Us On Instagram